Measurement and Geometry Unit

3.3 Perimeter and Area

  1. You want to give the front of your garage a new coat of paint. All of the siding needs to be painted except for the garage door. The door is 7 feet high and 16 feet wide.
    1. How many square feet of siding will you be painting?
    2. The picture is a side view of a house. The bottom is a rectangle and a triangle is attached to the top of the rectangle to form the roof. The rectangular part of the side of the house has a height of 10.5 feet and a width of 26 feet. The trianglular part of the side of the house has a base of 26 feet and a height of 4.75 feet. The garage door on the side of the house is rectangular and has a heigth of 7 feet and a width of 16 feet.

      Guided Solution:

      Area of Rectangle Area of Triangle      Area of Door     


      \(\begin{equation} A=L W \end{equation} \)

      \(\begin{equation} A=26 \cdot 10.5 \end{equation}\)

      \(\begin{equation} A=273 \text{ ft}^{2} \end{equation}\)



      \(\begin{equation} A= \frac{1}{2}bh \end{equation} \)

      \(\begin{equation} A=\frac{1}{2} \cdot 26 \cdot 4.75 \end{equation} \)

      \(\begin{equation} A=61.75 \text{ ft}^{2} \end{equation} \)

      \(\begin{equation} A=L W \end{equation}\)

      \(\begin{equation} A=16 \cdot 7 \end{equation}\)

      \(\begin{equation} A=112 \text{ ft} ^{2} \end{equation}\)

      Area to be painted = Area of rectangle + Area of triangle - Area of door

      \begin{equation} 273+61.75-112=222.75 \end{equation}


      Area of siding to be painted =

      \begin{equation} 222.75 \text{ ft}^{2} \end{equation}

    3. A quart of paint covers 80 square feet and you have _222.75 square feet_ to paint. How many quart-size cans of paint do you need to buy?
    4. \( \begin{equation} \frac{\$222.75}{80 \text{ ft}^{2}}=2.78 \end{equation} \)

      You need to purchase 3 quarts of paint.

    5. One quart of paint costs $11.64. How much is the total cost of the paint that you need to buy?
    6. $11.64 * 3 = $34.92

    7. The tax rate in Knoxville is 9.25%. How much is the total cost including taxes?
    8. $34.92 * 0.0925 = $3.23

      $34.92 + $3.23 = $38.15

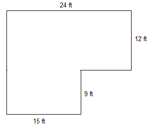
  2. Your backyard currently has no grass. You want to seed your backyard and enclose it with a fence for your dog.
    1. Determine the perimeter of your backyard.
    2. 90 ft

      The backyard is formed by a larger rectangle on top of a smaller rectangle. The larger rectangle on the top has a length of 24 feet and a width of 12 feet. The smaller rectangle on the bottom is attached all the way to the left of the top rectangle and has a length of 15 feet and a width of 9 feet.
    3. If chain link fencing costs $14 per foot installed, how much will it cost to enclose your backyard?
    4. 90 * 14 = $1260

    5. Determine the area of your backyard.
    6. 24 * 12 + 15 * 9 = 423 square feet

    7. If the cost of Kentucky blue grass seed is $0.03 for 1 ft2, how much will the seed for the backyard cost?
    8. 423 * 0.03 = $12.69

  3. You have a rectangular driveway with a circular garden in the middle of it.

    The driveway is in the shape of a rectangle with a circle cut out of its center. The rectangle has a length of 19 yards and a width of 6 yards. The radius of the circle is 2 yards.

    1. Determine the perimeter and area of your rectangular driveway.
    2. P = 2 * 6 + 2 * 19 = 50 yards

      A = 19 * 6 = 114 square yards

    3. The circular garden has a radius of 2 yards. Determine the area of the garden.
    4. \( \begin{equation} A=\pi r^{2} \end{equation} \)

      \( \begin{equation} A=\pi \text { * 2}^{2} \end{equation} \)

      The area of the garden is 12.57 square yards

    5. Your driveway is cracked and needs repaving. Calculate the area of the driveway that would be covered with new asphalt.
    6. 19 * 6 = 101.43 square yards

    7. If it costs $20.70 to repave each square yard with asphalt, then how much would you pay to repave your driveway?
    8. 101.43 * $20.70 = $2099.60

  4. The track pictured below encloses a grass field. Each long straight on the track measures 150 meters.

    The track is in the shape of a rectangle with a semicircle attached on each end. The length of the rectangle is 150 meters and the width of the rectangle is 30 meters. The diameter of each semicircle is 30 meters, the same as the length of the rectangle.

    1. Find the perimeter of the field.
    2. \( \begin{equation} C= 2 \pi r \end{equation} \)

      \( \begin{equation} C=30 \pi \end{equation} \)

      C = 94.25 m

    3. Find the area of the field.
    4. \( \begin{equation} A= \pi r^ {2} \end{equation} \)

      \( \begin{equation} A=222 \pi \end{equation} \)

      The area of the circular part of the track is 706.86 square meters.

      \( \begin{equation} A=LW \end{equation} \)

      A = 150 * 30

      The are of the rectangular part of the track is 4500 square meters

      The total area of the track is 4500 + 706.86 = 5206.86 square meters

  5. Find the area of the shaded region of the square with a square hole.
  6. The figure is a square with a square hole talen from the center. The length of one side of the outer square is 18 millimeters and the length of one side of the inner square is 6 millimeters.

    \( \begin{equation} A = s^{2} \end{equation} \)

    \( \begin{equation} A = 18^{2} - 6^{2} \end{equation} \)

    The area of the shaded regions is 288 square millimeters

  7. Addison wants to replace the old vinyl flooring in her living room and hallway with wood flooring. The dimensions of her hallway and living room floors are shown in the diagram. The Living room is a rectangle with a length of 15 feet and a width of 16.5 ft. The hallway extends from the rectangel on the left side near the bottom of the living room. The length of the hallway is 9.5 feet and the width of the hallway is 3.75 feet.
    1. Find the total area that will be replaced with wood flooring.
    2. A = 3.75 * 9.5 + 16.5 * 15 = 283.125 square feet

    3. The planks in each box of wood flooring at the store will cover an area of 40 ft2. How many boxes does Addison need to buy?
    4. \( \begin{equation} \frac{283.125}{40}=7.078125 \end{equation} \)

      Addison needs to buy 8 boxes of wood flooring.

    5. If one box costs $175.60, how much will the wood for the flooring project cost?
    6. 8 * $175.60 = $1404.80

    7. Contractors usually factor in 5% waste for a wood flooring project. How many square feet of wood flooring will probably be wasted in Addison’s project?
    8. 8 boxes * 40 = 320 square feet

      0.05 * 320 = 16 square feet of waste.